Nos services
Architecture d’intérieur et conception de plans Révélez le potentiel de vos espaces grâce à des plans sur-mesure et des solutions créatives
Sublimez chaque pièce de votre maison avec l’expertise en architecture d’intérieur et conception de plans de SARL YOUNES RENOVATION à ASNIÈRES SUR SEINE, pour des espaces élégants, fonctionnels et pensés dans les moindres détails.
Concevoir un intérieur qui vous ressemble demande savoir-faire, écoute et créativité. Chez SARL YOUNES RENOVATION, nous mettons notre expertise en architecture d’intérieur et conception de plans au service des particuliers comme des professionnels souhaitant repenser leurs espaces avec goût et précision. Chaque projet est imaginé sur mesure, selon vos envies, votre mode de vie et les contraintes techniques de votre bien.
Des espaces repensés avec méthode et créativité
Notre démarche commence toujours par l’observation : comprendre votre manière d’habiter, analyser la lumière, les volumes, la circulation et les usages. À partir de ce diagnostic, notre architecte d’intérieur établit des plans personnalisés qui mettent en valeur chaque mètre carré. Nous travaillons aussi bien sur des appartements anciens que sur des constructions récentes, pour des résultats à la fois esthétiques et ergonomiques. Grâce à une vision globale de l’architecture d’intérieur et conception de plans, nous créons des espaces harmonieux et durables.
De la conception à la réalisation, une expertise complète
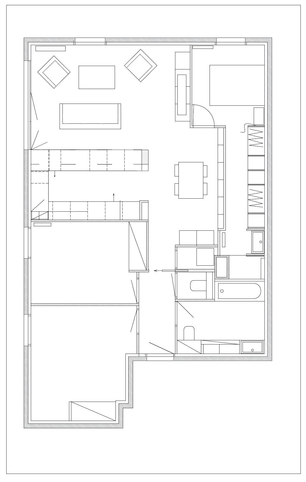
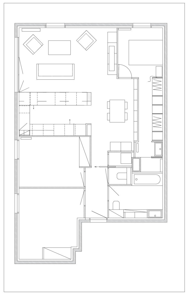
Nos prestations englobent l’ensemble du processus de création : relevés de cotes, élaboration de plans techniques 2D, modélisation 3D réaliste et accompagnement dans le choix des matériaux. Nous garantissons des solutions conformes aux normes électriques, thermiques et acoustiques. Nos clients bénéficient d’un accompagnement complet : étude, planification, suivi de chantier et livraison. Chez SARL YOUNES RENOVATION, chaque projet d’aménagement intérieur est conduit avec rigueur et sens du détail.
Nos atouts pour vos projets d’architecture d’intérieur
Notre équipe s’appuie sur une méthode éprouvée et des outils de conception performants. Voici quelques-unes des forces qui font la différence :
- Étude de faisabilité complète pour anticiper chaque contrainte technique
- Plans 2D et rendus 3D pour visualiser votre futur intérieur
- Conseils déco et sélection de matériaux nobles et durables
- Coordination avec l'équipe travaux pour une exécution fluide
- Respect des délais et des budgets fixés
- Un interlocuteur unique pour une communication simple et transparente
Pourquoi faire appel à SARL YOUNES RENOVATION pour vos projets ?
Basée à ASNIÈRES SUR SEINE, notre entreprise intervient dans tout le département des Hauts-de-Seine et les villes voisines : Levallois-Perret, Courbevoie, Puteaux, Suresnes ou encore Argenteuil. Nos clients nous choisissent pour notre professionnalisme, notre réactivité et notre exigence esthétique. L’expérience de plus de six années dans la rénovation intérieure et la conception sur mesure fait de SARL YOUNES RENOVATION un partenaire fiable et reconnu dans son domaine.
Avec nous, vous bénéficiez à la fois du regard d'un architecte d'intérieur et du savoir-faire d'une équipe complète d'artisans, pour un projet clé en main et sans surcoût de suivi de chantier. Contrairement à un architecte indépendant qui facture en plus le suivi en général à 10%, tout est inclus avec un forfait conception plus abordable et une exécution maîtrisée.
Nos conseils pratiques pour bien préparer votre projet
Voici quelques recommandations essentielles avant de démarrer votre projet d’architecture d’intérieur et conception de plans :
- Définir la fonction, le style et l'ambiance souhaitée afin qu'on fasse le tour ensemble de vos besoins et de vos priorités
- Préparer un budget avec une marge pour les imprévus techniques pour qu'on fasse une proposition réaliste.
- Organiser une première visite avec notre architecte pour discuter de votre projet et relever les mesures.
- Après la validation de l’étude, voir ensemble les esquisses, les plans et les rendus 3D proposés.
- Confirmer les choix définitifs avant le lancement du chantier pour éviter tout retard.
Une préparation rigoureuse garantit une réalisation fluide et un résultat à la hauteur de vos attentes.
Questions fréquentes sur l’architecture d’intérieur et la conception de plans
Combien de temps dure une mission complète ?
En moyenne, la phase de conception et de plans dure entre trois et six semaines selon la complexité du projet et la surface du bien.
Quels types de projets prenez-vous en charge ?
Nous intervenons sur des appartements, maisons, bureaux et commerces, en neuf ou en rénovation. Notre architecte d’intérieur s’adapte à chaque configuration.
Proposez-vous des rendus 3D avant le démarrage des travaux ?
Oui, nous réalisons des modélisations 3D permettant de visualiser le rendu final mais aussi un plan électrique et d'aménagement précis avant validation.
Comment s’organise le suivi du chantier ?
Valérie reste votre interlocuteur principal tout au long du projet, du dessin initial à la réception des travaux. Nous assurons la coordination et le contrôle qualité de chaque étape.
Donnez vie à vos idées avec SARL YOUNES RENOVATION
Faire appel à SARL YOUNES RENOVATION, c’est choisir la précision d’une conception rigoureuse et la créativité d’un design qui vous convient. Notre équipe vous accompagne pour valoriser chaque espace de votre habitat, avec des plans sur mesure, un suivi complet et une exécution maîtrisée. Pour tout renseignement ou devis, contactez-nous au 06 29 59 64 25. Nous intervenons à Levallois-Perret, Bois-Colombes, Colombes, Courbevoie, Nanterre, Puteaux, Suresnes, Boulogne-Billancourt, Argenteuil et toute l'Île-de-France selon le projet.
Vous vous interrogez sur la meilleure façon d’exploiter tout le potentiel de votre logement ? Découvrez comment notre service en réaménagement intérieur et optimisation d’espace permet de transformer les volumes existants et d’améliorer la fonctionnalité de chaque pièce.
