Nos réalisations
Nos réalisations
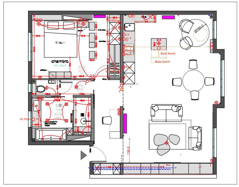
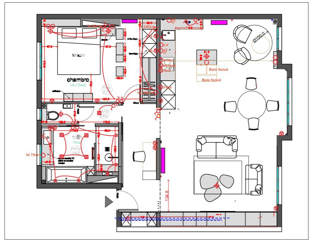
Réaménagement sur mesure chez Marion et Paul : repenser l’espace pour mieux vivre
Marion et Paul ressentaient une vraie frustration face à la perte d’espace due aux couloirs mal exploités. Leur souhait initial : agrandir le salon en réduisant leur chambre. Mais leurs envies allaient bien plus loin…
• Un salon spacieux et convivial : Ils rêvaient d’un grand espace pour recevoir, jouer avec leur fils et exposer leurs œuvres artistiques.
• Un dressing généreux : Malgré l’idée de réduire la chambre, ils tenaient à conserver un vrai espace de rangement.
• Des murs pour l’art : Leur passion pour l’art nécessitait des surfaces bien pensées pour accrocher leurs pièces favorites.
Une proposition inattendue mais parfaitement adaptée
Plutôt que suivre leur plan initial, une solution alternative leur a été proposée :
• Réorganisation des volumes pour supprimer les couloirs inutiles
• Optimisation de la chambre sans la réduire, en intégrant un dressing fonctionnel
• Création d’un salon ouvert, lumineux et structuré, avec des murs dédiés à l’exposition
• Fluidité des circulations et cohérence des espaces, pensée pour leur mode de vie
Résultat : un intérieur repensé avec audace, qui respecte leurs envies profondes tout en dépassant leurs attentes. Un vrai projet de co-création, où l’écoute et l’expertise ont permis de révéler le potentiel du lieu.
Rénovation complète d’un appartement suite à dégât des eaux et mauvaise expérience précédente
Le client, déçu par une première rénovation de la salle de bain jugée peu fonctionnelle, a décidé de tout repenser avec une approche plus cohérente et qualitative :
• Salle de bain entièrement repensée :
L’ancienne douche d’angle et les toilettes mal positionnées (face à la porte) ont été supprimées. Une nouvelle configuration a été imaginée pour plus de confort et d’intimité, avec l’installation d’une porte coulissante pour optimiser l’espace.
• Travaux globaux dans tout l’appartement :
Tous les sols et les murs ont été refaits, apportant une vraie sensation de neuf et une ambiance plus harmonieuse.
• Cuisine optimisée :
La porte, trop encombrante dans une pièce exiguë, a été retirée pour fluidifier les circulations. Le ballon d’eau chaude, auparavant visible, a été intégré discrètement au-dessus des meubles hauts, libérant visuellement l’espace.
Résultat : un appartement transformé, plus fonctionnel, plus esthétique, et surtout adapté aux usages réels du quotidien. Une rénovation qui redonne du sens à chaque mètre carré.
Bienvenue chez Jonas & Tia — une maison pleine de vie, repensée pour une famille qui bouge.
🔹 Avant :
Une entrée minuscule (90 x 120 cm), impossible de se déchausser, de poser un manteau ou de ranger la poussette sans passer par le garage glacial. Un vrai casse-tête.
Un espace de vie très mal pensé avec une cuisine et une salle à manger séparée du salon par de grands placards et un toilette
🔹 Après :
On a annexé une partie du garage ➜ création d’un vrai sas familial :
• ✅ Banc + meuble à chaussures à côté de l’escalier
• ✅ Placard dressing sous l’escalier pour manteaux, sacs et poussette
Un espace fluide, pratique, chaleureux.
Le cœur de la maison :
Le carrelage froid a laissé place à un parquet en bois naturel.
Résultat : sol sain, chaleureux, parfait pour les jeux des enfants — sans formaldéhydes ni frissons.
On arrive dans le salon. À gauche : cuisine + salle à manger.
Mais entre les deux… un WC mal placé.
Solution : on le ferme 15 jours pour tester ➜ verdict : inutile.
On le retire ➜ espace ouvert, lumineux, respirable.
• Un plan bar pour travailler tout en gardant un œil sur les enfants
• Une grande table dépliable pour les repas en famille et les invités venus de L'ile de la Réunion
• Un coin petit-déjeuner malin pour libérer la cuisine
Trois avant-projets plus tard, leur maison est devenue le reflet de leur vie : fonctionnelle, chaleureuse, et pleine de bonnes ondes.
Transformer une baignoire en grand espace douche ! et un toilette ordinaire en toilette suspendu
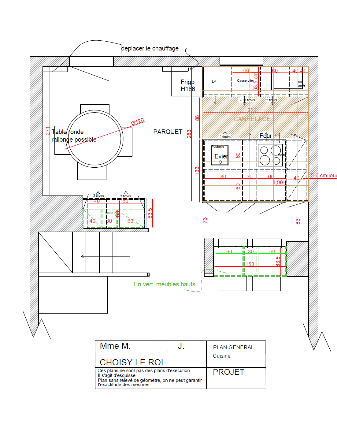
Relooking d’une cuisine et réorganisation des espaces de vie
Ce projet a permis de transformer un intérieur jugé mal pensé en un lieu chaleureux, fonctionnel et ouvert sur l’extérieur :
• Nouvel aménagement de la cuisine : L’ancien îlot central avec plan bar, peu utilisé et trop imposant, a été remplacé par un îlot plus compact. Une table ronde a été installée devant la grande fenêtre pour enfin profiter de la vue naturelle.
• Création d’un coin détente : Un espace fauteuils a été aménagé pour lire ou savourer un café, apportant une touche cosy à la pièce de vie.
• Optimisation de l’entrée : Le bureau, auparavant encombrant dans le salon, a trouvé sa place dans l’entrée, désormais repensée pour accueillir cette fonction.
• Valorisation du couloir : Cet espace, jusqu’ici inutilisé, a été intégré dans la réflexion globale pour fluidifier les circulations et maximiser le potentiel du logement. Et mise en couleur avec un magnifique vert dans le couloir et les toilettes
• Chambre : pose d'un décor murale et tête de lit
Résultat : un intérieur plus harmonieux, lumineux et adapté au quotidien, où chaque zone a trouvé sa juste place.
Le logement a été entièrement repensé pour plus de confort, de sécurité et d’élégance :
• Transformation de l’accès à l’étage : L’ancienne échelle de meunier a été remplacée par un escalier en bois sur mesure, avec balustrade, offrant un accès sécurisé et esthétique à l’étage ouvert sur le salon.
• Création de toilettes au rez-de-chaussée : L’espace cuisine a été légèrement réduit pour intégrer un WC, pratique et discret.
• Nouveau sol chaleureux : Pose d’un parquet en chêne massif sur l’ensemble du plancher pour une ambiance naturelle et raffinée.
• Remise à neuf des installations : L’électricité et la plomberie ont été entièrement refaites pour répondre aux normes actuelles et assurer fiabilité et sécurité.
• Salle de bain modernisée : Rénovation complète avec des équipements fonctionnels et un style contemporain.
Ce duplex est désormais un cocon élégant, fonctionnel et parfaitement adapté à la vie quotidienne de Nainie.
En collaboration avec Clarisse Pons Décoratrice, réaménagement de l'entrée et relooking de la cuisine en bleu façade et carrealge en conservant les anciens caissons. Création d'un meuble bas dans le salon avec un système pour intégrer le projecteur.
Transformation d’une salle de douche en salle de bain haut de gamme
Ce projet a métamorphosé une pièce fonctionnelle mais étroite en un espace élégant et parfaitement optimisé :
• Extension de la pièce : Un ancien placard situé dans l’entrée a été récupéré pour agrandir la salle d’eau, permettant une meilleure circulation et une disposition plus ergonomique.
• Intégration d’une baignoire-douche : L’espace gagné a permis d’installer une baignoire avec fonction douche, alliant confort et praticité.
• Ajout de rangements sur mesure : Des solutions de rangement ont été intégrées pour un espace organisé et épuré.
• Installation d’un meuble-vasque design : Élément central de la nouvelle salle de bain, il apporte à la fois style et fonctionnalité.
Le résultat : une salle de bain spacieuse, raffinée et pensée pour le quotidien, avec une vraie sensation de bien-être dès l’entrée dans la pièce.
